KAPCSOLATFELVÉTEL
Ingatlan jellege
családi ház
Belső terület
205 m²
Telek terület
350 m²
Tájolás
dél
Építési állapot
használt
Építési mód
tégla
Szobák száma
4 szoba
Erkély
10 m²
Terasz
26 m²
Épület szintje
2.
Épült
2005
Ingatlan állapot
kívül: jó
belül: jó
Klíma
van
Fűtés
cirko
Komfort
duplakomfort
Parkolás
van teremgarázs
Közműállapot
csatorna: bekötve
gáz: bekötve
villany: bekötve
víz: bekötve
Energetika
nincs megadva
Budapest, I. kerület, Gellérthegy
Irányár
Szobák
Terület
Telek terület
A ház egy világos, napfényes, madárcsicsergéses ősfás környezetben fekszik.
A környék infrastruktúrája kiváló, minden pár percen belül elérhető: a MOM Park, Villányi út, ALLEE, Újbuda központ, és a PESTI BELVÁROS is könnyen megközelíthető gyalog, tömegközlekedéssel illetve autóval.
Iskola, óvoda és kisbolt karnyújtásnyira található.
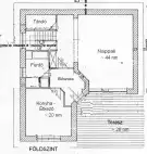
A netto 187 négyzetméteres ház földszintjén egy tágas, terasz és kertkapcsolatos déli fekvésű nappali, egy teljesen felszerelt nagy konyha étkezővel, tároló helyiségek, fürdőszoba zuhanyzóval és káddal, illetve önálló WC található. Az emeleten 3 hálószoba, gardróbszoba, családi fürdőszoba, háztartási helyiség és egy panorámás déli terasz várja a tulajdonosokat.
Az ingatlan egy rendezett, dús zöld vegetációval körül ölelt, virágos, ősfás, nagy kertrészben fekszik. Csendes, nyugodt környezet jellemzi, sem a nem létező szomszédok, sem az utca zaja nem hallatszik.
(nincs átmenő forgalom!)
A Gellérthegy különleges gyöngyszeme ez a villa jellegű épület. Kiemelt elhelyezkedése, déli fekvése, ősfákkal körülvett intim kertje és a város közelsége ideális választás lehet azoknak, akik egy magas presztizsű, nyugodt de központi, zöldövezeti lakókörnyéken szeretnének letelepedni.
Az ingatlanhoz a szomszéd társasház mélygarázsában egy autóbeálló tartozik, amely igény szerint megvásárolható.
A ház szerkezetileg önálló épület, jogilag a szomszédos társasházhoz tartozó albetét (társasházi lakás).
A terasz előtti nagy kertrész elhelyezkedéséből adódóan praktikusan igen, jogilag nem kizárólagos használatú.”
Kiválóak tömegközlekedési opciók, buszmegállók 110, 112, 8E, 27, ill. villamos: 61, 17 a közelben, pár perces sétával megközelíthetők!
Az ingatlan tehermentes, akár azonnal birtokba vehető!
Kínálati ár: 359 M Ft
belül: jó
gáz: bekötve
villany: bekötve
víz: bekötve
Budapest, I. kerület, Gellérthegy

+36 70 456 1112
hosszu.levente@ibred.hu
KAPCSOLATFELVÉTEL
Ingatlan jellege
családi ház
Belső terület
205 m²
Telek terület
350 m²
Tájolás
dél
Építési állapot
használt
Építési mód
tégla
Szobák száma
4 szoba
Erkély
10 m²
Terasz
26 m²
Épület szintje
2.
Épült
2005
Ingatlan állapot
kívül: jó
belül: jó
Klíma
van
Fűtés
cirko
Komfort
duplakomfort
Parkolás
van teremgarázs
Közműállapot
csatorna: bekötve
gáz: bekötve
villany: bekötve
víz: bekötve
Energetika
nincs megadva